Search Properties

Mount Court, Commerce Street, Melbourne, DE73 8FT

Melbourne

£789,000

5 x 5 x
Department:
Sales
Postcode:
DE73 8FT
Type:
Detached House
Availability:
For Sale
Receptions:
3
Tenure:
Freehold

Property features

  • A High Specification Executive Detached Family home
  • Brand New Construction- Ready To Move Into! Part Exchange Considered!
  • Energy Efficient Gas Central Heating & Double Glazed, Solar Panels
  • Accommodation Over Three Floors With Five Bedrooms, Two En Suites
  • Spacious Entrance Hall, Cloaks, Lounge, Family Room, High Specification Dining Kitchen
  • Utility Room, Garden Room, First Floor Principle Suite With En Suite & Dressing Room
  • First Floor; Three Bedrooms With Bedroom Two Having An En Suite & A Family Bathroom
  • Second Floor; Two Further Bedrooms & Shower Room, Outside Rear Garden, Single Garage & Car Port
  • EPC : TBC - Freehold

Summary

STAMP DUTY PAID

A brand new, high specification detached family residence offering luxury living over three floors — PART EXCHANGE CONSIDERED!

Designed with energy efficiency in mind, the property benefits from solar panels, gas central heating with underfloor heating to the ground floor, and electric underfloor heating to all bathrooms and en suites. Additional features include a burglar alarm system, car charging point, and Porcelanosa wall and floor tiling to bathrooms and en suites.

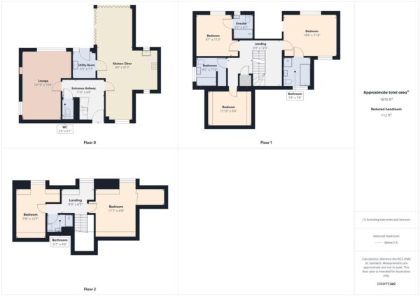
The beautifully arranged accommodation extends to approximately 2,104 sq ft, plus a garage and carport, and comprises: a spacious hallway, lounge, breakfast kitchen, family room, utility room, and garden room. The first floor offers a principal suite with dressing area and en suite, a second bedroom with en suite, a third bedroom, and a family bathroom. The second floor provides two further well-proportioned bedrooms.

The property is set behind electric gates within a private courtyard and enjoys a rear garden, garage, and carport.

Viewing is strongly advised to appreciate the quality and space on offer!

Details

Spacious Hallway
Door to the front.

Cloakroom
Low level WC and wash hand basin

Superb Lounge
Double glazed window to the side and rear, feature fireplace.

Family Room
Double glazed window to the front.

Professionally Designed Dining Kitchen
An extensive range of fitted modern cupboards and quartz worktops, undermounted sink with Monoblock taps, Induction hob, extraction unit, Integrated double oven, microwave dishwasher and fridge freezer, integrated wine cooler.

Garden Room
With folding doors to the rear garden to the side and rear.

Utility Room
With fitted modern cupboards and worktops and single drainer sink unit. integrated washing machine. Double glazed window to the rear.

First Floor
Spacious landing with oak and glass stairs.

Principle Bedroom Suite
Double glazed window to the rear.

Dressing Room
Double glazed window to the rear.

En Suite Bathroom
Panelled bath low level WC, wash hand basin and separate shower cubicle, shaver point.

Bedroom Two
Double glazed window to the rear.

En Suite Shower Room
Low level WC, wash hand basin and shower cubicle.

Bedroom Three

Second Floor
Landing

Bedroom Four
Double glazed window to the rear.

Shower Room
Low level WC wash hand basin and shower cubicle.

Bedroom Five
Double glazed window to the rear.

Outside
Located behind electric gates, block paved shared courtyard area which will be owned in a limited company shared between the four properties.

Single Brick Garage
With electric vehicle charging point. Metal door to the front.

Large Car Port

Rear Garden
Turfed rear garden, outside tap and electric socket.

Tenure
Freehold

Council Tax Band
South Derbyshire Council

Council Tax Band : TBC

Viewings
Please contact David, Julie or Henry at our office to arrange your viewing.
All viewings are by appointment only.

Services
Mains water, gas and electricity are available to the property but none of these, nor any of the appliances attached thereto, have been tested by us, who gives no warranties as to their condition or working order. Telephone subject to suppliers regulations.

Valuations
If you have a property to sell please contact us to arrange your free valuation.
We can be contacted Monday - Friday 9am - 5pm or Saturdays 9am - 4pm.

Fixtures, Fittings & Appliances
The mention of any fixtures, fittings and/or appliances does not imply they are in full efficient working order.

Photographs
Photographs are reproduced for general information and it cannot be inferred that any item shown is included in the sale.

Measurements
Every care has been taken to reflect the true dimensions of this property but they should be treated as approximate and for general guidance only.

Money Laundering
Where an offer is successfully put forward we are obliged by law to ask the prospective purchaser for confirmation of their identity. This will include production of their passport or driving licence and a recent utility bill to prove residence. This evidence will be required prior to solicitors being instructed.

General Note
These particulars, whilst believed to be accurate are set out as a general outline only for guidance and do not constitute any part of an offer or contract. Intending purchasers should not rely on these Particulars of Sale as statements of representation of fact, but must satisfy themselves by inspection or otherwise as to their accuracy. No person in this agent's employment has the authority to make or give any representation or warranty in respect of the

Hours Of Business
Our office is open Monday to Friday 9am - 5.30pm

Saturday 10am - 3:30pm.

Floor Plans

Request Further Details

Or arrange a viewing